Low Rise LA

Lieu
Los Angeles, Californie

Client
Ville de Los Angeles

Année
2021

Catégorie
Habitat

Rôle
Architecte d’intérieur

Illustration
Anna Richter

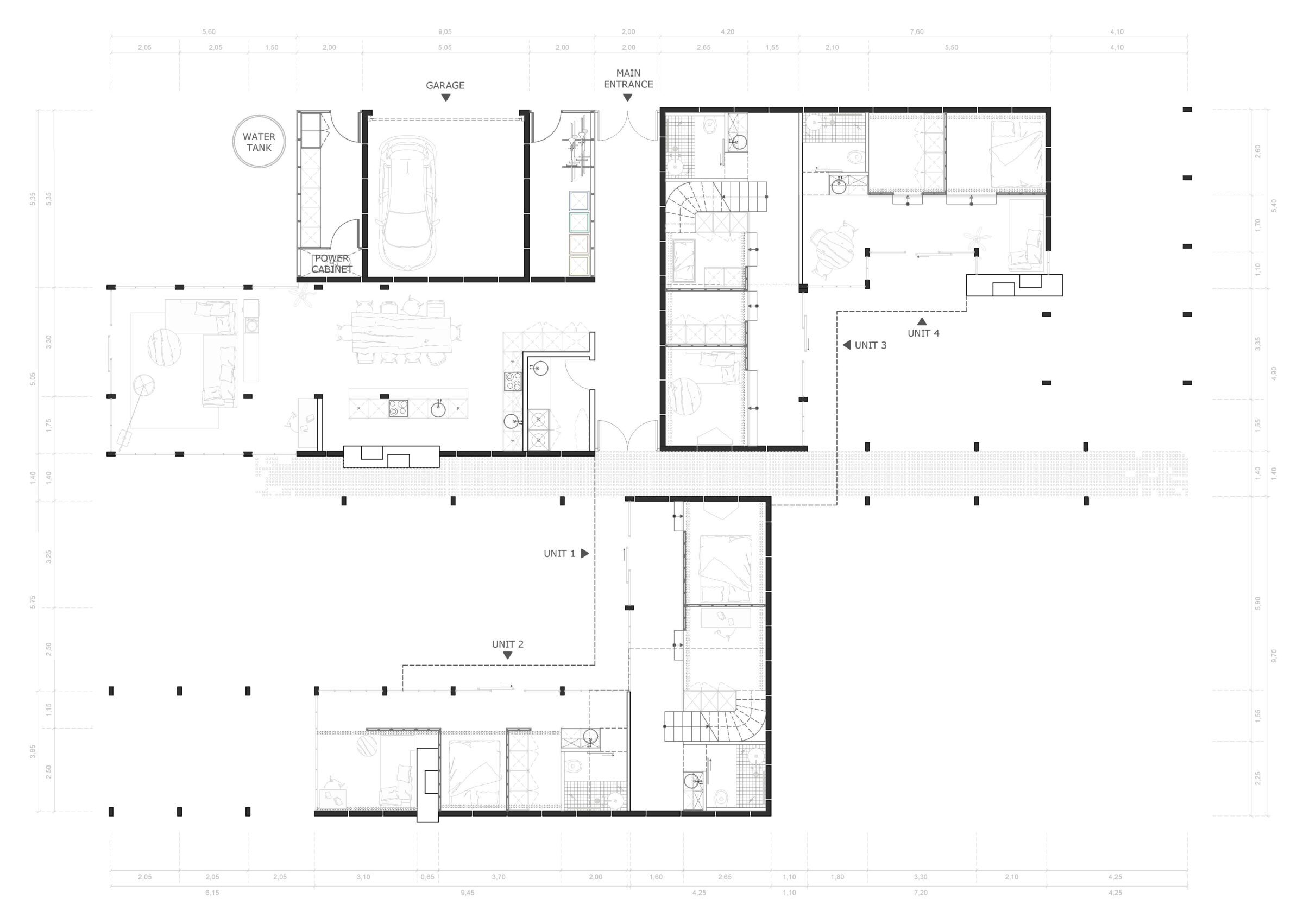
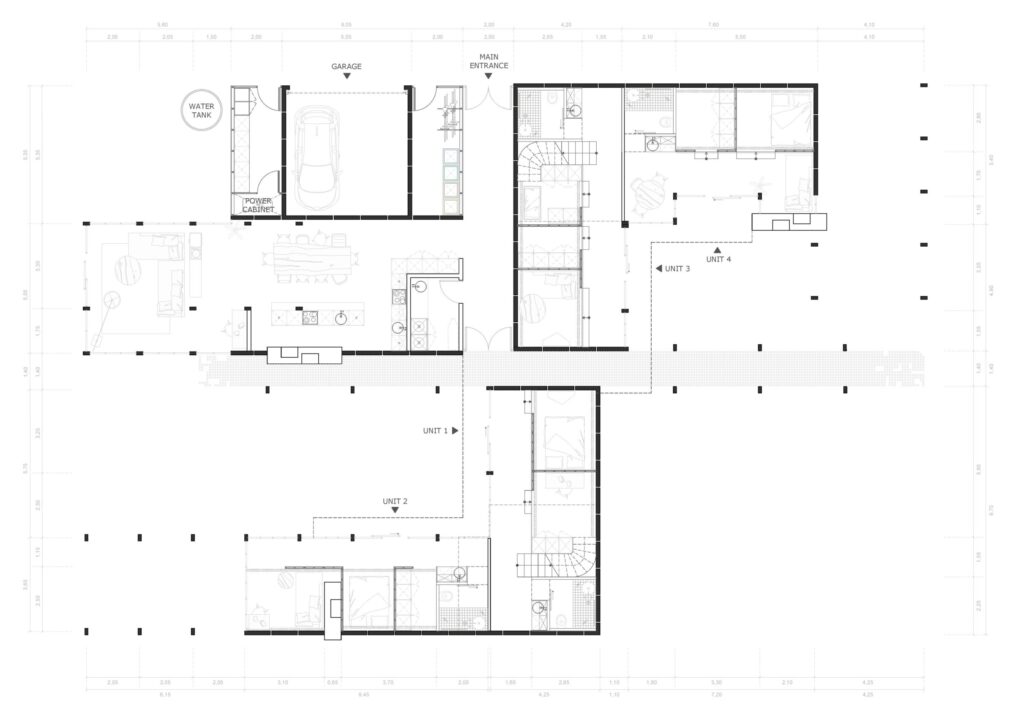
Cette proposition architecturale illustre ma vision d’une architecture d’intérieur durable, fondée sur le bon sens, l’usage de matériaux naturels et une approche du luxe responsable, profondément ancrée dans son contexte régional. Le projet a reçu une mention honorable dans la catégorie (Re)Distribution du concours international Low-Rise : Housing Ideas for Los Angeles, lancé en novembre 2020. Ce concours invitait les architectes à imaginer de nouveaux modèles de logements collectifs durables et accessibles, tout en répondant aux enjeux sociaux, environnementaux et historiques propres à la Californie du Sud.

Pensé comme un laboratoire d’idées, ce projet non réalisé me permet de démontrer ma manière de réfléchir l’espace, de dessiner et de concevoir des lieux évolutifs. Il s’appuie sur la réinterprétation de la Kings Road House, maison moderniste emblématique conçue par Rudolph M. Schindler. L’objectif est clair : proposer une architecture d’intérieur flexible, capable de s’adapter aux usages changeants de ses habitants au fil du temps.

La réutilisation de l’existant est au cœur de la démarche. Pour moi, transformer plutôt que construire constitue l’un des actes les plus durables en architecture. Le projet imagine quatre unités de vie intégrées dans une structure modulaire, favorisant un habitat partagé, évolutif et respectueux des différents modes de vie contemporains.

Le choix des matériaux traduit également cette philosophie : bois issu de filières durables, éléments de mobilier recyclés, cadres de fenêtres et de portes réemployés. Ces matériaux à faible empreinte carbone participent à une esthétique sobre et chaleureuse, où le luxe s’exprime par la qualité des matières, la lumière et le rapport à la nature. En limitant l’emprise au sol et en préservant un maximum d’espaces extérieurs, le projet affirme une conviction forte : la durabilité commence par la reconnexion à la beauté du paysage et du vivant.